Nowe mieszkanie Piotrowice-Ochojec, ul. Rzepakowa 1a
Rzepakowa 1a, Piotrowice-Ochojec, Katowice, śląskie
- 414 141 zł
- 33,67 m²
- 12 300 zł/m²
Biuro Sprzedaży Mieszkań
Skontaktuj się
Nowe mieszkanie Piotrowice-Ochojec, ul. Rzepakowa 1a
Rzepakowa 1a, Piotrowice-Ochojec, Katowice, śląskie
zobacz mapę
zaktualizowane:
5 listopada 2025
Nowe mieszkanie Piotrowice-Ochojec, ul. Rzepakowa 1a
Inwestycja: Dobrynów
Zaktualizowane: 5 listopada 2025
414 141 zł 33,67 m² 12 300 zł/m²
IV kwartał 2025
6/7
1
garaż
deweloperski
Zobacz na mapie
Termin realizacji:
IV kwartał 2025Piętro:
6/7Liczba pokoi:
1Miejsce postojowe:
garażStan mieszkania:
deweloperskiSzczegóły ogłoszenia
- Typ oferty: nowe mieszkanie na sprzedaż
- Cena: 414 141 zł (12 300 zł/m²)
- Termin realizacji: IV kwartał 2025
- Status oferty: dostępne
- Rynek: pierwotny (oferta dewelopera)
- Charakterystyka mieszkania: 33,67 m², 1 pokój, 1 łazienka; stan: deweloperski
- Budynek: apartamentowiec
- winda
- Rozkład mieszkania: piętro 6/7, jednopoziomowe
- Powierzchnia dodatkowa: balkon (5,9 m²)
- Kuchnia: aneks kuchenny
- Miejsce/a postojowe: w garażu wielostanowiskowym; garaż w bryle budynku, winda z poziomu garażu
naziemne - Bezpieczeństwo: monitoring
- Źródło: oferta dewelopera: TDJ, zaktualizowane: 05.11.2025
- sygnatura ogłoszenia: F6.06
Lokalizacja
- Inwestycja: Dobrynów
- Adres: Rzepakowa 1a, Piotrowice-Ochojec, Katowice, śląskie
- Na terenie inwestycji: stacja ładowania samochodów elektrycznych, rowerowania, zewnętrzne wiaty rowerowe
- W pobliżu żłobek, przedszkole, szkoła podstawowa, szkoła średnia, basen, apteka, przychodnia, przystanek autobusowy, supermarket, centrum handlowe, park
Opis nieruchomości
Lokalizacja: ul. Rzepakowa, Piotrowice-Ochojec, Katowice, śląskie
Typ nieruchomości: mieszkania, rynek pierwotny
Szacowana data oddania: IV (...)
Rozwiń opis
| MieszkanieD1.02 | 33,52 m² | 11 400 zł/m² | 1/7 | 1 | 382 128 zł |
| Mieszkanie | ||||
|
||||
| D1.02 |
- Budynek: apartamentowiec
- Stan wykończenia: deweloperski, możliwe wykończenie "pod klucz"
- Charakterystyka mieszkania: jednopoziomowe, aneks kuchenny, 1 łazienka
- Ogrzewanie: centralne ogrzewanie
- Powierzchnia dodatkowa: balkon (5,9 m²)
- Miejsce/a postojowe:: w garażu wielostanowiskowym; garaż w bryle budynku, winda z poziomu garażu
naziemne - Udogodnienia: winda
Lokalizacja: ul. Rzepakowa, Piotrowice-Ochojec, Katowice, śląskie
Typ nieruchomości: mieszkania, rynek pierwotny
Szacowana data oddania: IV
Więcej
sygnatura: D1.02
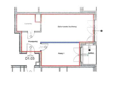
| MieszkanieD1.03 | 45,62 m² | 10 500 zł/m² | 1/7 | 2 | 479 010 zł |
| Mieszkanie | ||||
|
||||
| D1.03 |
| MieszkanieD1.06 | 49,01 m² | 10 500 zł/m² | 1/7 | 2 | 514 605 zł |
| Mieszkanie | ||||
|
||||
| D1.06 |
| MieszkanieD1.07 | 85 m² | 9 400 zł/m² | 1/7 | 4 | 799 000 zł |
| Mieszkanie | ||||
|
||||
| D1.07 |
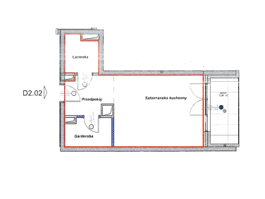
| MieszkanieD2.02 | 33,37 m² | 11 700 zł/m² | 2/7 | 1 | 390 429 zł |
| Mieszkanie | ||||
|
||||
| D2.02 |
| MieszkanieD2.07 | 84,94 m² | 9 450 zł/m² | 2/7 | 4 | 802 683 zł |
| Mieszkanie | ||||
|
||||
| D2.07 |
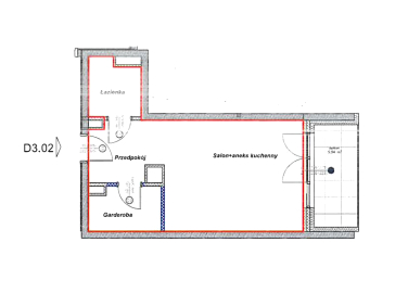
| MieszkanieD3.02 | 33,42 m² | 11 950 zł/m² | 3/7 | 1 | 399 369 zł |
| Mieszkanie | ||||
|
||||
| D3.02 |
| MieszkanieD3.03 | 46 m² | 11 000 zł/m² | 3/7 | 2 | 506 000 zł |
| Mieszkanie | ||||
|
||||
| D3.03 |
| MieszkanieD3.05 | 74,72 m² | 10 150 zł/m² | 3/7 | 3 | 758 408 zł |
| Mieszkanie | ||||
|
||||
| D3.05 |
| MieszkanieD3.07 | 84,38 m² | 9 700 zł/m² | 3/7 | 4 | 818 486 zł |
| Mieszkanie | ||||
|
||||
| D3.07 |
Więcej
Biuro Sprzedaży Mieszkań
32 359 67...
32 359 67 77
- Zgłoś błąd lub naruszenie











